Продажа помещения свободного назначения
Горьковская, 26 мин
10 900 000 ₽
286 843 ₽ за м²
- 38 м²
- Площадь
- 8/10
- Этаж
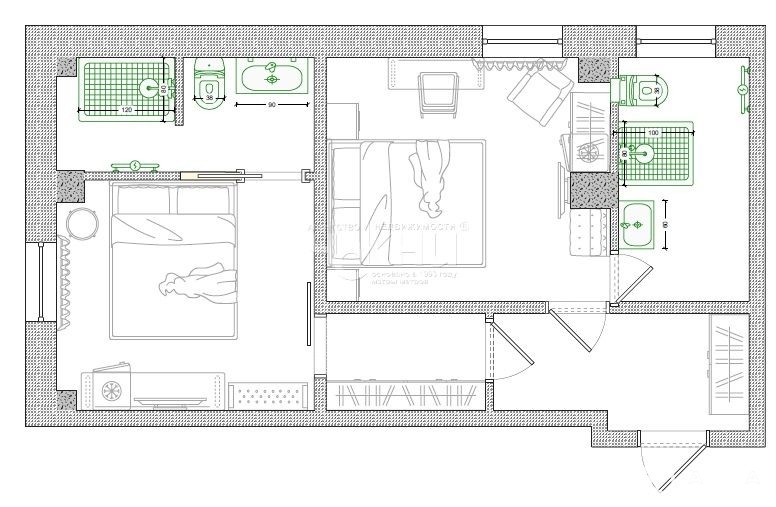
Большая Печерская, 26. Продаем просторное помещение (38, 1 кв.м) с коммуникациями (вода и канализация внутри помещения), угловое, с тремя окнами, светлое и теплое, с правильной и рациональной планировкой, широкого спектра назначения, в том числе офисное, бьюти-услуги, а также для обустройства атмосферных апартаментов в самом центре Нижнего Новгорода с потрясающим видом из окон и массой достопримечательностей вокруг.
В шаговой доступности Волжская Набережная, Кремль, колесо обозрения, гребной канал, Большая Покровская, бутики и рестораны, кофейни и супермаркеты, огромное количество точек притяжения для туристов. Помещение располагается в бизнес-центре А класса. В здании на первом этаже расположены 2 ресторана.
Выгодное территориальное расположение объекта прекрасно подойдет для комфортного проживания и обустройства собственной квартиры, особенно если Ваша организация расположена также в центре города или Вы часто приезжаете сюда.
Данное помещение легко преобразуется в уютные 2 апартамента, уже есть проект. Можем выполнить чистовую отделку помещения по согласованному с вами дизайну по цене 30 000 р. за кв.м. Средняя суточная арендная плата за апартаменты в этом месте 6500 р. В месяц 195000 р. В собственности более 5 лет, просто продажа без покупки альтернатив. Звоните, пожалуйста, ответим на все вопросы.
Дата обновления: 11 апреля 2026