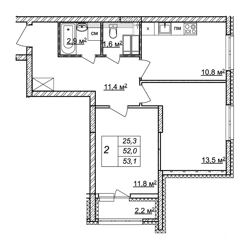
- 53 м²
- Площадь
- 25.3 м²
- Жилая площадь
- 10.8 м²
- Площадь кухни
- 21/25
- Этаж
9 178 279 ₽
172 849 ₽ за м²
ID объявления 11175307
Поделиться
Добавить в избранное
В продаже квартира № 121, расположенная в доме №13 (по генплану) в ЖК «Новая Кузнечиха». Срок сдачи - 1 кв. 2027г. Квартиры сдаются с чистовой отделкой, выполненной с использованием современных, безопасных, экологичных и долговечных материалов высокого класса. Интерьер жилых комнат выполнен в нейтральных тонах, что делает его универсальным. Все инженерные коммуникации, стояки водоснабжения и канализации зашиты в короба. Советский район. Экологически чистая среда в близи Щелковского хутора. Остановка общественного транспорта на территории ЖК. В пешеходной доступности от жилого комплекса находится уже развитая инфраструктура Советского района: школы, детские сады, поликлиники, торгово-развлекательные центры , остановки общественного транспорта с развитой сетью маршрутов. На территории ЖК продуманная концепция благоустройства с детскими игровыми комплексами, спортивными площадками, озеленение по всей территории микрорайона. Официальный застройщик - ООО СЗ «Инградстрой».
Дата обновления: 17 сентября 2025