Продажа коттеджа
Нижегородская область, Нижний Новгород, Александровская сл, 89
- 613 м²
- Площадь
- 491.80 м²
- Жилая площадь
- 29.90 м²
- Площадь кухни
- 3
- Этажность
- 26 сот
- Площадь участка
55 000 000 ₽
89 767 ₽ за м²
ID объявления 12159101
Поделиться
Добавить в избранное
Выгодное предложение для большой семьи, которая хочет жить в своем доме!!!!
Улица односторонняя, на ней расположены три дома.
Дружные соседи.
Асфальтированная дорога. Великолепный вид на Верхние Печеры, который никогда не застроится.
Ухоженная территория на которой расположены: баня, место отдыха с барбекю, качели .
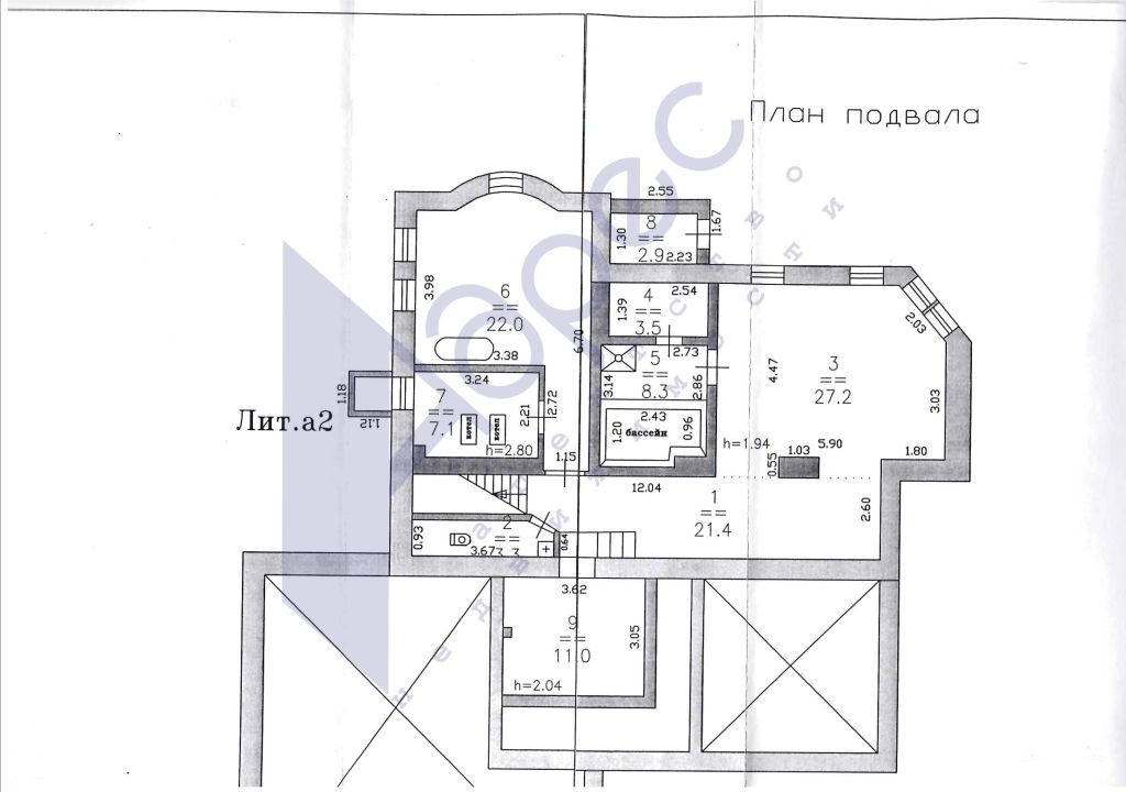
Дом состоит из трех этажей!!
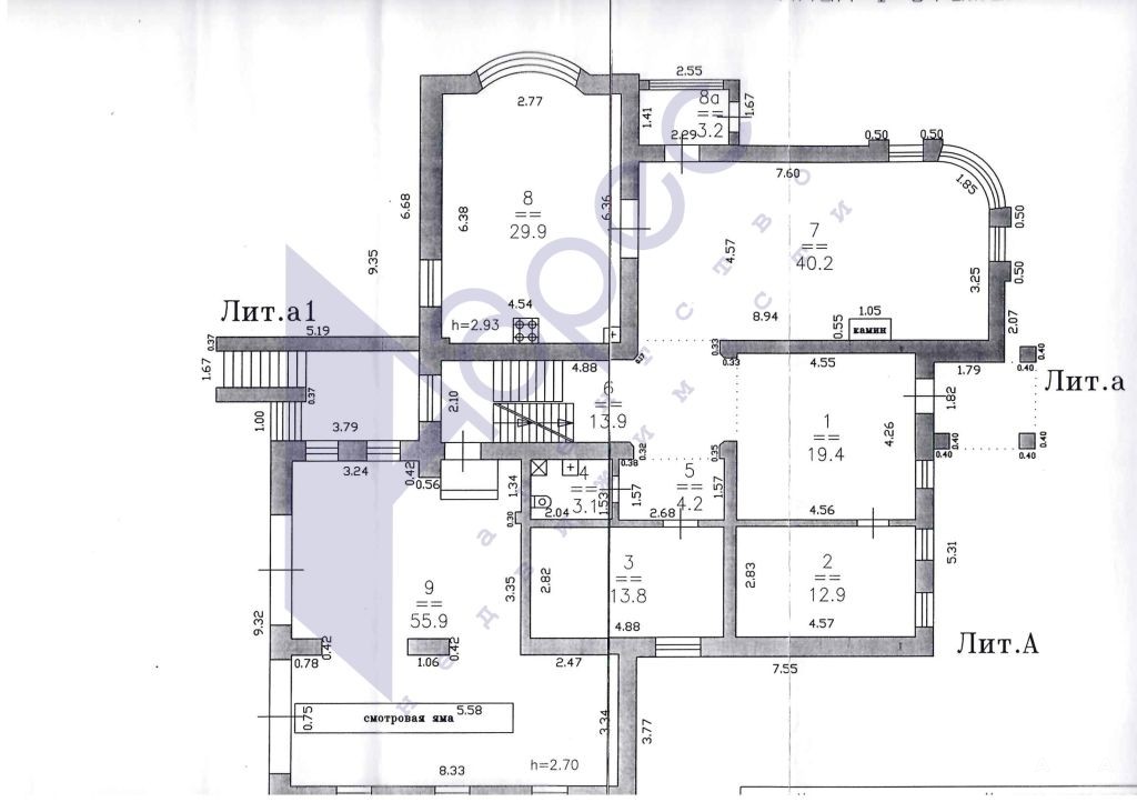
1-й этаж: три жилых комнаты (12, 9+13, 8+40, 2) кв. м.
кухня - 29, 9 кв.м., сан.узел, прихожая
Гараж
2-й этаж: 5 жилых комнат (15, 9+17, 1+13, 3+26, 6+18, 2) кв.м.
три сан.узла
мансарда: 3 жилых помещения (70, 3+37, 6+26) кв.м.
подвал: тренажерный зал, сауна + бассейн с душевой, подсобное помещение, котельная, постирочная, са.узел, кладовая.
Домовладение расположено на земельном участке площадью 26, 5 соток.
Дата обновления: 23 октября 2025