172 200 ₽/мес

700 ₽ за м²/мес.

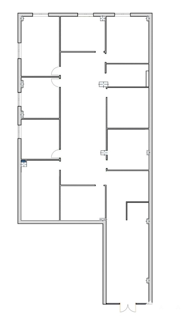
246 м²
Площадь
3 м
Высота потолка
C
Класс
3/3
Этаж

Поделиться

Добавить в избранное

Офисное помещение в деловом центре "Мирамар",

246, 3 кв м
ул Тимирязева 9 к 1. Советский район.
3-й этаж. Сан узлы на этаже
От ООО.
Дополнительно оплачиваются коммунальные услуги (примерно21000)
И электроэнергия.

- Удобное расположение комплекс находится в деловом центре города.
Шаговая доступность до остановок общественного транспорта, напротив парка им. Пушкина,
в 10 минутах ходьбы расположена станция метро Горьковская
Несколько входов.
- Большой автомобильный трафик;
- Современный многофункциональный деловой центр 2018 года постройки
- Презентабельный внешний вид фасадов комплекса

Дата обновления: 29 января 2026